Hyppää sivuvalikkoon

Pyynikintie 2

Pyynikin lukio

Historiallinen ja arvokas Pyynikintie 2 

Pyynikintie 2:n vanha historiallinen kiinteistö on saneettu täysin, alkuperäistä jäi oikeastaan vain talon rakenne ja kaunis ulkokuori. Tampereella Pyynikintie 2:n kiinteistö on tunnettu myös nimellä "Vanha Teku", koska talo on alun perin vuonna 1916 rakennettu ja vuonna 1934 laajennettu Tampereen teknilliseksi oppilaitokseksi. Rakennus on luokiteltu valtakunnallisesti merkittäväksi rakennetuksi kulttuuriympäristöksi. Historiallisessa kiinteistössä toimi sisällissodan aikana vuonna 1918 mm. Tampereen punakaartin esikunta. 

Pyynikintie 2:n ensimmäisen kerroksen suuri yhteinen Monitoimitila ja kouluravintola sekä kerrokset 2-4 ovat kokonaisuudessaan Pyynikin lukion käytössä. Suunnittelu tehtiin alusta alkaen Musiikin erityisen koulutustehtävän - niin musiikin kuin musiikkiteatterin - tarpeisiin. Hankkeen arkkitehtinä toimi helsinkiläinen arkkitehtitoimisto Von Boehm - Renell Oy, joka on erikoistunut juuri koulurakennusten suunnitteluun. Opettajien toiveita otettiin hankkeessa hyvin huomioon mm. äidinkielen ryhmätyötilojen, liikunnan pukeutumistilojen ja musiikin tilojen osalta. 

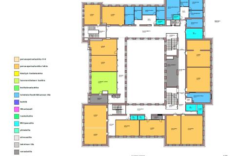
Lukion pääkerrokset ovat talon 2. ja 3. kerroksessa. Toiseen kerrokseen sijoittuvat äidinkielen ja kirjallisuuden sekä luonnontieteiden opetus ja lukion hallinto. Opiskelijakunta sai hallintotilojen läheltä oman kokoustilansa ja loungensa. (Kuva: Hankeselvityksen kuva kiinteistön 2. kerroksen suunnittelusta.)

Hatanpää Pyynikintie 2 hankesuunnittelu

Kolmannessa kerroksessa sijaitsevat kuvataiteen, kielten ja reaaliaineiden opetustilat. Useat tiloista ovat yhdisteltäviä tai jaettavia mahdollistaen joustavan käytön. Toisaalta ylioppilastutkinnon päivinä luokat voidaan avata suuriksi yhteisiksi koetiloiksi. Liikuntasali ja musiikkiteatterin luokka muodostavat oman liikunnallisen solunsa, jossa mahdollisestaan suurempienkin ryhmien liikunta ryhmää eri tiloihin jakaen.

Neljännen kerroksessa ovat musiikin tilat. Kaksi suurta luokkaa studioineen ja muine oheistiloineen mahdollistaa laajan musiikkitoiminnan. Bänditiloja on lisäksi kiinteistön kellarikerroksessa. 

Pyynikintie 2 on suuri, osin neli-, osin viisikerroksinen rakennus. Lukion lisäksi taloon on sijoitettu perusopetuksen tiloja. Kiinteistön pohjakerroksessa on Vivi Lönnin koulun käsityön ja kotitalouden luokat. Ensimmäiseen kerrokseen sijoittuvat lisäksi opiskeluhuollon tilat.

Pyynikintie 2:n kaunis liikuntasali on pienehkö ja lukion suurista liikunnan ryhmistä osa liikkuu talon ulkopuolella. Pyynikin ja Eteläpuiston upeat maisemat tulevat tulevaisuuden lukiolaisille tutuiksi. Toisaalta lukiolaiset nykyiseen tyyliin liikkuisivat osalle kursseista muualle. Pyynikin alueella ja keskustan länsipuolella on paljon liikuntatiloja, mutta myös paljon tilojen käyttäjiä.

(Artikkelin kuva: Tampere Taivaalta)

Pyynikin lukio
Päivitetty 5.3.2026